Project Type
Residential / Multi-Family
Location
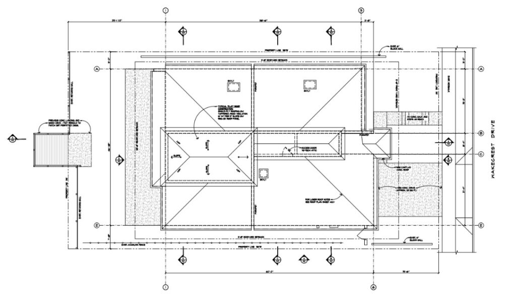
18320 Wakecrest Drive in Malibu, California
Project Size
2,200 sq ft.

Copeland Residence (Mech Only)

Project Overview

This project involves the design of a new ground-up residence located at 18320 Wakecrest Drive in Malibu, California. The scope includes the full HVAC system design along with California Title 24 energy modeling and compliance documentation. The home consists of approximately 2,300 sq. ft. of interior space, with the scope based on files and correspondence received on May 8, 2025.

Project Scope

Mechanical Engineering
Services include studying HVAC system options and providing recommendations, followed by the design of the selected system. Scope includes zoning diagrams, HVAC equipment specifications, air distribution layouts, supply and return diffuser design, and ventilation for restrooms, kitchens, and water heater as required. California Title 24 mechanical and envelope energy modeling and compliance documentation are also included.

Services

Mechanical Design

Highligths

sekabet 1571
grandpashabet 7432
Holiganbet 1300
jojobet 1171
sekabet 1571
grandpashabet 7432
Holiganbet 1300
jojobet 1171
sekabet 1571
grandpashabet 7432
Holiganbet 1300
jojobet 1171
sekabet 1571
grandpashabet 7432
Holiganbet 1300
jojobet 1171
sekabet 1571
grandpashabet 7432
Holiganbet 1300
jojobet 1171
sekabet 1571
grandpashabet 7432
Holiganbet 1300
jojobet 1171
sekabet 1571
grandpashabet 7432
Holiganbet 1300
jojobet 1171
sekabet 1571
grandpashabet 7432
Holiganbet 1300
jojobet 1171
Jojobet 1172
holiganbet 1241
Grandpashabet 7433
Sekabet 1572
tipobet 7160
Jojobet 1172
holiganbet 1241
Grandpashabet 7433
Sekabet 1572
tipobet 7160
Jojobet 1172
holiganbet 1241
Grandpashabet 7433
Sekabet 1572
tipobet 7160
Jojobet 1172
holiganbet 1241
Grandpashabet 7433
Sekabet 1572
tipobet 7160
Jojobet 1172
holiganbet 1241
Grandpashabet 7433
Sekabet 1572
tipobet 7160
Jojobet 1172
holiganbet 1241
Grandpashabet 7433
Sekabet 1572
tipobet 7160
Jojobet 1172
holiganbet 1241
Grandpashabet 7433
Sekabet 1572
tipobet 7160
tipobet 7160
sekabet 1572
sekabet 1572
grandpashabet 7433
holiganbet 1241
holiganbet 1241
jojobet 1172
jojobet 1172
Superior National School of Dramatic Art
jojobet güncel giriş
ensad
https://www.ensad.edu.pe/
jojobet giriş
jojobet
1084 marsbahis
sekabet 1569
matbet 959
meritking 2017
grandpashabet 7429
holiganbet 1239
jojobet 1170
casibom giriş
https://dom-dostoevskogo.ru/
casibom
jojobet güncel
https://immunizeindia.org/
jojobet giriş
jojobet