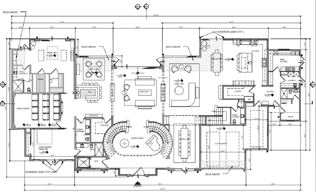
This project involves the ground-up design of a new two-story residential home located at 68 Laurel Drive in Rancho Palos Verdes, California. With approximately 11,800 square feet of interior space, the scope includes full Electrical, Mechanical (HVAC), and Plumbing design services.
Electrical Engineering
Complete electrical design for the residence, including new utility service drawings, load calculations, and required application forms. Scope includes coordination of utility service entrances, transformer locations, and main switchboard placement. Interior and exterior electrical systems will be designed, including circuiting for façade, driveway, and landscape lighting (layouts and fixture specs by Architect/Landscape Architect), power distribution, EV charger integration, and provisions for low-voltage systems. Emergency load calculations, generator requirements, single-line diagrams, and voltage drop/short-circuit calculations are also included. Solar PV coordination will be provided; however, solar system design is excluded.
Mechanical Engineering
Full HVAC design services, including system option studies with recommendations, zoning layouts, equipment selection, and complete air distribution design. Scope includes exhaust systems for kitchens and restrooms, ventilation for water heaters, cooling for low-voltage equipment, and design of supply/return diffuser layouts. Title 24 mechanical energy modeling, envelope calculations, and compliance documentation are included.
Plumbing Engineering
Plumbing design services include sizing of incoming utility services (water, gas, sanitary, and storm), plus full design of hot/cold water, waste and vent, storm drainage, and gas systems. Plumbing fixture and equipment specifications, fixture load calculations, and plumbing riser diagrams are included. Design will be coordinated with the Landscape Architect and Civil Engineer for site utility points of connection. Site drainage design is excluded.
