Project Type
Office Building / Tenant Improvements
Location
3435 Wilshire Boulevard, Suite 1600
Project Size
6,600 sq ft.

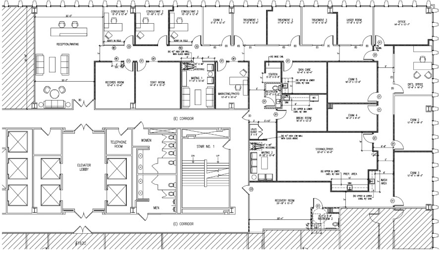
3435 Wilshire #1600- Equitable

Project Overview

This project involves the renovation of an existing 6,700 sq. ft. suite located at 3435 Wilshire Boulevard, Suite 1600, within a high-rise building. The scope focuses on modifying and reworking the HVAC system to accommodate the new interior layout as provided in the plans received on July 15, 2025, ensuring improved performance, comfort, and alignment with the updated space design.

Project Scope

Lam+Tea provided mechanical engineering services that included reviewing available as-built drawings and existing site conditions to support the redesign of the HVAC system. The scope covered preparing HVAC zoning diagrams, specifying and designing new HVAC equipment, and developing a new air distribution layout with supply and return diffusers. Services also included providing exhaust design for new restrooms and completing state mechanical energy compliance calculations and forms. Architectural backgrounds for coordination were to be provided by others.

Services

Mechanical Design

Highligths